û

メニュー


動物病院の設計図

[2015年12月17日]

こんにちは。獣医師の平松です。12月も元気にブログをさぼっていたため、これから急いで書きます。今回は動物病院の設計図についての話題です。

梨の木どうぶつ病院が開業してから、あと数ヶ月で3年が経過しますが、僕が開業した後に動物病院の開業計画を立てている友人達は、僕にどんな段取りで開業準備をしたのか、医療機器をどうしたのか、内装はどうしたのか、良かった点やもう少しこうすれば良かったと思っている点などを聞いてくれます。

そんな時は、持ち前のおせっかいな気性が全開となり、事細かに自分の開業計画を伝えます。特に、とことんこだわった設計に関しては、詳細に自分の計画や実際の使い勝手、改善点などを話します。

上の画像は、僕が開業計画を進めていた時に自分で書いた設計図の草案です。当時まだ勤務医をしていたため、仕事が終わって自宅に帰ってから、黙々と設計図を書いていました。毎日毎日夜中3時くらいまで、色んな案をああでもないこうでもないと書き続け、翌日寝不足で出勤したものです。

しかし、この自分の病院の設計図を考える作業は、大変ではありましたが本当に楽しかったです。自分が思い描いていた診療を実現するための病院の設計です。今まで沢山の動物病院を見てきました。その中で、もっとこうすれば良いのに、もっとこうだったら使い勝手が良いのにと、「自分だったらこうするのに」が、正に実現するのです。それはもう楽しいに決まっています。時間を忘れて書きまくりました。

もちろん実際には、建物の構造上の問題、予算、スペースの関係で、完全に自分の思い通りになるわけではありません。しかし、理想に近づけるべく、努力を惜しみませんでした。

草案を設計士さんに送り、かえってきた図面がこちらです。↓↓↓

↓↓↓

自分が書いた草案は、壁の厚みなどは考慮されておらず、少し形が変わりました。動物病院を何件も作って来た設計士さんが手直ししてくれた図面です。とても興味深く拝見させて頂きました。この後、更に僕の希望を伝え、何回も何回も細かい所で設計を書き直してもらいました。

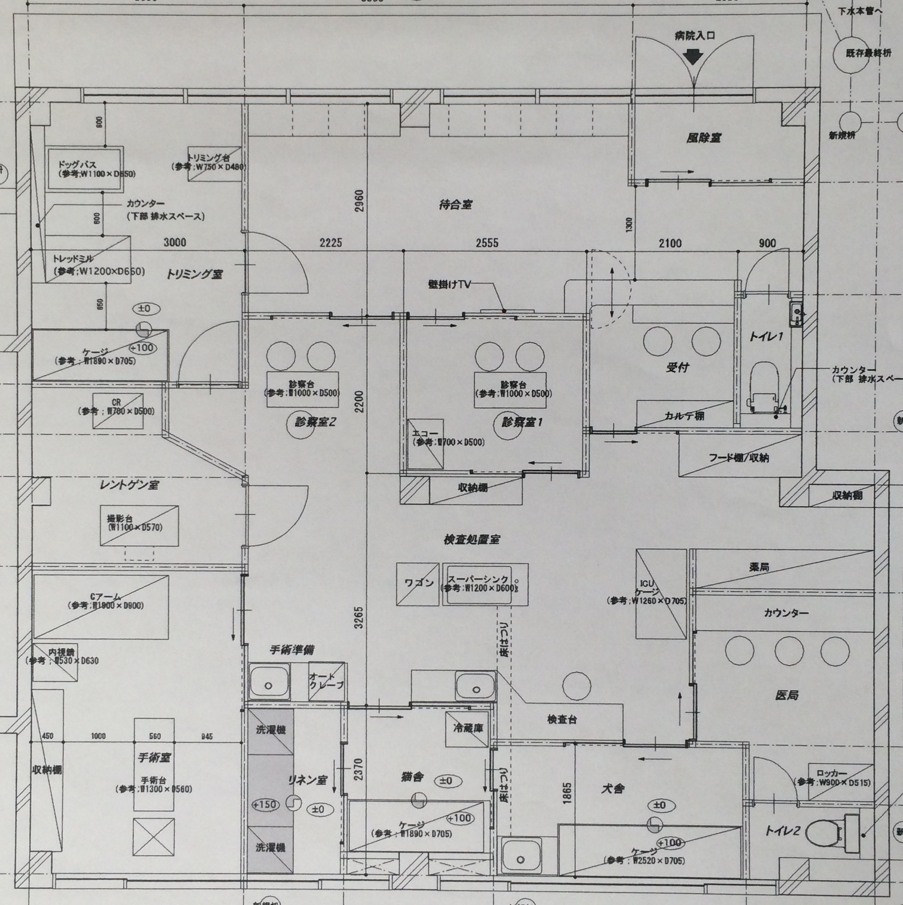
そして設計し直すこと十数回、ついに設計図が完成しました。以下の画像が、最終的に決まった図面です。↓↓↓

↓↓↓

制限のある建物の構造・スペース・予算の中で、自分が思う最高の設計ができました。他の先生が見たら「自分だったらこうするのに」と思う点も、当然のことながら多々あるとは思いますが、自分としては、手前味噌で恐縮ですがかなり良い出来映えだと思っております。

実際に作り始めてから、現場の状況で変更する事になった箇所があるため、この設計図通りでない所もありますが、概ねこの図面通りに仕上がりました。

次回のブログでは、具体的にこだわった点などを書いて行きたいと思いますので、宜しければお付き合い下さいませ!

獣医師 平松